Irodaszer webáruház Hobbi kellékek webáruház Jégkár és horpadás javítás fényezés nélkül
« új keresés

Keresés





- MFt
 

-

- db

- db
építés módja




















állapot


















fűtés típusa































Ingatlan hirdetések / Eladó ingatlanok / Eladó Téglalakás Balatonlelle

Eladó Téglalakás Balatonlelle

Az ingatlan adatai



hirdetés azonosítója: 132455
jelleg: Eladó
ingatlan típusa: Téglalakás
irányár: 79 990 000 Ft
megye: Somogy még több Somogy megyei hirdetés
település: Balatonlelle még több Balatonlelle
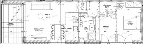
hasznos alapterület: 65 m²
áramellátás: Bevezetve (230 Volt)
vízellátás: Van, saját vízórával
csatornázottség: Közműhálózatba bekötve
építés módja: Tégla
komfort fokozat: Összkomfort
kilátás: Panorámás
fűtés típusa: Padlófűtés
építés éve: 2025
emelet: 1
állapot: Új építésű
külső állapot: Hőszigetelt
szobák száma: 3
parkolási lehetőség: Udvarban
klíma: Központi klíma
bővebb leírás: Most akár 15%-kal olcsóbban vásárolhatja meg balatoni panorámás otthonát! 

Döntse el Ön, hogy milyen áron és milyen konstrukcióval vásárol.

 

A lehetséges fizetési ütemezések:

25%-75%

50%-50%

75%-25%

 

A hirdetésben szereplő vételár 75%-25% konstrukció esetén értendő.

 

Balatoni panorámás, fedett gépkocsibeállóval rendelkező, vízparti utcában található társasházi lakás. 

 

A CITY CARTEL INGATLANIRODA eladásra kínál Balatonlellén, új építésű, 9 lakásos, kis lélekszámú társasházban található, 1. emeleti, 65 m2 lakóterületű, 1+2 szobás téglalakást. 

 

Magas műszaki tartalom, padló fűtés, fan-coil hűtés, elektromos alumínium redőnyők, lift, gyepszőnyeg, öntözőrenszer. 

 

Egyedi fizetési ütemezés!

 

Várható átadás: 2026. III. negyedév. 

 

A lakáshoz 1 db kültéri gépkocsibeálló 4 millió forintért kötelezően mgvásárolandó.

 

További információkért írjon, vagy hívjon, a hét bármely napján az alábbi elérhetőségeim egyikén!

 

Irodáink: 
8600 Siófok, Fő tér 6. (Sió Pláza -1. szint)
8640 Fonyód, Ady Endre u. 5. (Balaton Áruház földszint)

8638 Balatonlelle, Rákóczi út 276.

 

Kövess minket Facebook-on is: @citycartelbalaton!
helységek:

Fényképek

A hirdető adatai

kapcsolat: Gál Balázs  
telefonszám: +36 70 866-8876  
e-mail cím: uh.letracytic@szalab.lag  
     
ingatlan iroda: City Cartel, Siófok Az iroda további hirdetései
iroda címe: 8600 Siófok, Fő tér 6. (Sió Pláza -1 szint)  
telefonszám: +36 70 778-2119  
fax:  
e-mail cím: uh.letracytic@notalab  
weboldal: siofok.citycartel.hu  

Amíg nem vette fel a kapcsolatot személyesen az eladóval addig ne utaljon előleget!