Irodaszer webáruház Hobbi kellékek webáruház Jégkár és horpadás javítás fényezés nélkül
« új keresés

Keresés





- MFt
 

-

- db

- db
építés módja




















állapot


















fűtés típusa































Ingatlan hirdetések / Eladó ingatlanok / Eladó Téglalakás Siófok

Eladó Téglalakás Siófok

Az ingatlan adatai



hirdetés azonosítója: 132425
jelleg: Eladó
ingatlan típusa: Téglalakás
irányár: 118 500 000 Ft
megye: Somogy még több Somogy megyei hirdetés
település: Siófok még több Siófok
telek terület: 500 m²
hasznos alapterület: 79 m²
áramellátás: Bevezetve (230 Volt)
vízellátás: Van, saját vízórával
csatornázottség: Közműhálózatba bekötve
építés módja: Tégla
komfort fokozat: Összkomfort
kilátás: Utcára
fűtés típusa: Hőszivattyú
építés éve: 2026
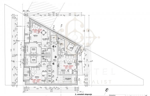
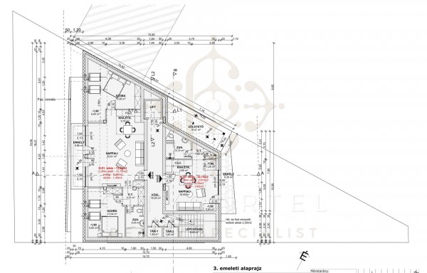
emelet: 3
állapot: Új építésű
külső állapot: Hőszigetelt
szobák száma: 3
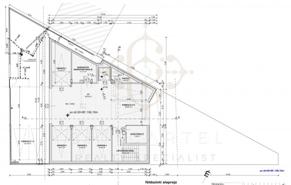
parkolási lehetőség: Teremgarázsban
klíma: Saját split klíma
bővebb leírás: Modern, liftes társasházi lakások Siófok belvárosában 2027-es átadással!!

 

A CITY CARTEL BALATON KÍNÁLATÁBAN:

Siófokon a belváros szívében, a parttól mindössze 600 méterre kínálunk eladásra egy 2026-ban épülő modern, minimalista stílusú, liftes társasházban található 3. emeleti téglalakást. A ház 30-as Leier téglából készül és 20 cm-es szigetelést kap.

 

Hideg és melegburkolatok 8.000 Ft-ig egyedileg választhatók, ugyanúgy mint a beltéri ajtók is 120.000 Ft-ig. A nyílászárók kívül színes, belül fehér színt kapnak. Riasztó és kamerarendszer is szolgálja a társasház biztonságérzetét. A ház energetikai besorolása A+ lesz.

 

A 46 m²-es, nyugati tájolású otthonhoz egy 7 m²-es erkély is tartozik, amely ideális helyszín a nyugodt délutánokhoz. A belső tér amerikai konyhás nappaliból és két hálószobából áll, így kiválóan alkalmas állandó otthonnak, nyaralónak vagy akár bérbeadásra is.

 

A lakás külön mérőórákkal, hőszivattyús padló fűtéssel, klímával, valamint távolról írányitható elektromos redőnyökkel felszerelt. 

 

A parkolásról fedett gépkocsibeálló gondoskodik, mely kötelezően megvásárolandó 8.000.000 Ft-ért, továbbá  egy 1.5 nm-es tároló 2.000.000 Ft áron. A házhoz tartozik nyitott felszíni zárt parkoló 4.000.000 Ft-ért. 

 

Az első szerzödők ajándék tárolót kapnak és kedvezményesen tudják megvásárolni a parkolót is.

 

Ez a modern, igényes lakás tökéletes választás mindazok számára, akik a városi kényelem és a Balaton közelségének tökéletes harmóniáját keresik – akár saját otthonnak, akár befektetésnek.

 

Az építkezés 2026. januárjában kezdődik, a várható átadás 2027. tavasza.

 

Irodáink: 
8600 Siófok, Fő tér 6. (Sió Pláza -1. szint)
8640 Fonyód, Ady Endre u. 5. (Balaton Áruház földszint) 
8638 Balatonlelle, Rákóczi út 276.  
  
Kövess minket Facebook-on is: @citycartelbalaton!
helységek:

Fényképek

A hirdető adatai

kapcsolat: Takács Zsolt  
telefonszám: +36 70 778-2122  
e-mail cím: uh.letracytic@tlosz.scakat  
     
ingatlan iroda: City Cartel, Siófok Az iroda további hirdetései
iroda címe: 8600 Siófok, Fő tér 6. (Sió Pláza -1 szint)  
telefonszám: +36 70 778-2119  
fax:  
e-mail cím: uh.letracytic@notalab  
weboldal: siofok.citycartel.hu  

Amíg nem vette fel a kapcsolatot személyesen az eladóval addig ne utaljon előleget!