Irodaszer webáruház Hobbi kellékek webáruház Jégkár és horpadás javítás fényezés nélkül
« új keresés

Keresés





- MFt
 

-

- db

- db
építés módja




















állapot


















fűtés típusa































Ingatlan hirdetések / Eladó ingatlanok / Eladó Téglalakás Balatonlelle

Eladó Téglalakás Balatonlelle

Az ingatlan adatai



hirdetés azonosítója: 130485
jelleg: Eladó
ingatlan típusa: Téglalakás
irányár: 61 732 000 Ft
megye: Somogy még több Somogy megyei hirdetés
település: Balatonlelle még több Balatonlelle
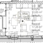
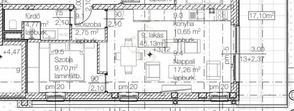
hasznos alapterület: 54 m²
áramellátás: Bevezetve (230 Volt)
vízellátás: Van, saját vízórával
csatornázottség: Közműhálózatba bekötve
gázellátás: Nincs a közelben
építés módja: Tégla
komfort fokozat: Összkomfort
kilátás: Kertre néző
fűtés típusa: Hőszivattyú
építés éve: 2025
emelet: 1
állapot: Új építésű
külső állapot: Hőszigetelt
szobák száma: 2
parkolási lehetőség: Udvarban
klíma: Központi klíma
bővebb leírás: Akciós, előértékesítési árakon!!

 

Vízparti utcában, a Balatontól mindössze 100 méterre! 

 

A CITY CARTEL INGATLANIRODA eladásra kínál Balatonlellén, pár lépésre a szabadstrandtól, új építésű, 22 lakásos, 4 szintes, liftes társasházban található, tégla építésű lakásokat. 

 

A lakások 1+1 szobás beosztással, erkély és teraszkapcsolattal kerülnek kialakításra. 

 

Kulcsrakészen, várhatóan, 2026. év végén kerülnek átadásra. 

 

Hőszivattyús hűtés-fűtés, elektromos redőnyök, ütemezett fizetés. 

 

A lakásokhoz, gépkocsibeálló 3 millió forintért kötelezően, saját tárolók 2 millió foritért opcionálisan megvásárolhatóak. 

 

További részletes információért forduljon hozzám bizalommal, a hét bármely napján!


Irodáink: 
8600 Siófok, Fő tér 6. (Sió Pláza -1. szint)
8640 Fonyód, Ady Endre u. 5. (Balaton Áruház földszint) 
8638 Balatonlelle, Rákóczi út 276.  
  
Kövess minket Facebook-on is: @citycartelbalaton! 
helységek:

Fényképek

A hirdető adatai

kapcsolat: Gál Balázs  
telefonszám: +36 70 866-8876  
e-mail cím: uh.letracytic@szalab.lag  
     
ingatlan iroda: City Cartel, Siófok Az iroda további hirdetései
iroda címe: 8600 Siófok, Fő tér 6. (Sió Pláza -1 szint)  
telefonszám: +36 70 778-2119  
fax:  
e-mail cím: uh.letracytic@notalab  
weboldal: siofok.citycartel.hu  

Amíg nem vette fel a kapcsolatot személyesen az eladóval addig ne utaljon előleget!