| hirdetés azonosítója: | 118505 | |
| jelleg: | Kiadó | |
| ingatlan típusa: | Iroda egyéb | |
| irányár: | 2 742 600 Ft | |
| megye: | Budapest | még több Budapest megyei hirdetés |
| település: | Budapest, VI. kerület | még több Budapest, VI. kerület |
| hasznos alapterület: | 580 m² | |
| emelet: | Földszint | |
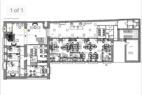
| bővebb leírás: | 6. kerületben,KIADÓ egy kb 600nm-es iroda! Andrássy út közelében található ez az irodahelyiség. Akár 100 nm is bérelhető! Több, mint 14 irodahelyiség, tárgyaló került kialakításra, galériás, előtér, recepció is van. Korszerű klíma működik a helységekben. Minimum 1 évre, 2 havi kaucióval és az első havi bérleti díjjal birtokba vehető. Bérleti díj: 13euró./nm + rezsi |
|
| helységek: | ||
| kapcsolat: | Papp Gabriella | |
| telefonszám: | +36 30 815-2511 | |
| e-mail cím: | uh.letracytic@ibag.ppap | |
| ingatlan iroda: | CITY CARTEL BUDAPEST ÉS AGGLOMERÁCIÓ | Az iroda további hirdetései |
| iroda címe: | 1118 Budapest, Hegyalja út 54. | |
| telefonszám: | +36 13 651-450 | |
| fax: | ||
| e-mail cím: | uh.letracytic@adub | |
| weboldal: | www.citycartel.hu |